Restaurering og transformering

Krarup Hansen & Co. arbejder med restaurering og transformering af bevaringsværdige bygninger i Helsingør og Nordsjælland med fokus på bevarelse af historie, håndværk og arkitektonisk værdi. Vi kombinerer traditionelle teknikker med moderne løsninger for at sikre langsigtet bevarelse.

Vores tilgang til restaurering tager udgangspunkt i bygningens historie og oprindelige design, mens vi samtidig implementerer moderne løsninger til brandsikring, isolering og energioptimering. Vi arbejder tæt sammen med håndværkere og specialister for at sikre autentisk restaurering.

Bevaringsværdig bygning

Vi restaurerer bevaringsværdige bygninger med fokus på bevarelse af original arkitektur, materialer og håndværk. Vores projekter omfatter restaurering af facader, tag, vinduer og interiører med respekt for bygningens historiske værdi.

Kongevejen 225 - Billede 1
Kongevejen 225 - Billede 2
Kongevejen 225 - Billede 3
Kongevejen 225 - Billede 4
Kongevejen 225 - Billede 5
Kongevejen 225 - Billede 6
Kongevejen 225 - Billede 7
Kongevejen 225 - Billede 8
Se projekt
Fyrkroen - Fyrvejen 29A, Gilleleje - Billede 1
Fyrkroen - Fyrvejen 29A, Gilleleje - Billede 2
Fyrkroen - Fyrvejen 29A, Gilleleje - Billede 3
Fyrkroen - Fyrvejen 29A, Gilleleje - Billede 4
Se projekt

Transformering

Vi transformerer historiske bygninger til nye formål med respekt for bygningens karakter og værdi. Vores projekter omfatter omdannelse af historiske bygninger til moderne brug, mens vi bevarer deres arkitektoniske identitet og historiske værdi.

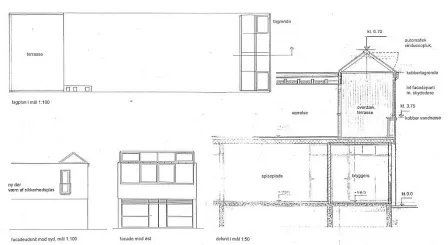
Kulturværftet - madmarked rooftop restaurant

Transformering af de gamle værftshaller med indretning af ny restaurant på taget. De gamle værft haller som er indrettet til madmarked, ønskes suppleret med ny rooftop-restaurant på hallernes tag. Restauranten indrettes med køkken ind- og udvendig servering som har udsigt over Øresund fra Kulden til Kronborg.

Kulturværftet - madmarked rooftop restaurant - Billede 1
Kulturværftet - madmarked rooftop restaurant - Billede 2
Kulturværftet - madmarked rooftop restaurant - Billede 3
Kulturværftet - madmarked rooftop restaurant - Billede 4
Se projekt
Ballerup Ny Skole - Billede 1
Ballerup Ny Skole - Billede 2
Ballerup Ny Skole - Billede 3
Ballerup Ny Skole - Billede 4
Ballerup Ny Skole - Billede 5
Se projekt

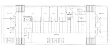
Ballerup Ny Skole

Transformering af Ballerup Ny Skole over flere etaper fra 2013 – 2018 med ny indskoling, industrikøkken, lærerfaciliteter og ombyg. af lokaler for ældste klasser.

Gefionsparken Helsingør

Transformering, renovering og energioptimering af almene boliger. Registrering, brugerdialog, forslag og Helhedsplan udarbejdet i perioden 2013 – 2019.

Gefionsparken Helsingør - Billede 1
Gefionsparken Helsingør - Billede 2
Gefionsparken Helsingør - Billede 3
Gefionsparken Helsingør - Billede 4
Se projekt
Tønder rådhus - Billede 1
Tønder rådhus - Billede 2
Tønder rådhus - Billede 3
Tønder rådhus - Billede 4
Tønder rådhus - Billede 5
Tønder rådhus - Billede 6
Se projekt

Tønder rådhus

Transformering, udvidelse, renovering og energioptimering af rådhuset. Udarbejdet i 2013.

Emiliekildevej 15 i Charlottenlund

Ombygning i tre etaper. Ombygning af altan inddækning med glastag mv. Indretning af aftægtsbolig og ombygninger ejendommen. Projektering og udførelse i perioden 2005 – 2009.

Emiliekildevej 15 i Charlottenlund - Billede 1
Emiliekildevej 15 i Charlottenlund - Billede 2
Emiliekildevej 15 i Charlottenlund - Billede 3
Se projekt
Dyssegårdsskolen i Gentofte - Billede 1
Dyssegårdsskolen i Gentofte - Billede 2
Dyssegårdsskolen i Gentofte - Billede 3
Dyssegårdsskolen i Gentofte - Billede 4
Se projekt

Dyssegårdsskolen i Gentofte

Renovering og energioptimering af ovenlyset over hovedtrappen. Projektering, byggeledelse og tilsyn udført i 2012.

Renell Haderslev Vej 18 i Helsingør

Transformering af eks. Administrationsbygning med indretning af loftrum til adm. samt forslag til ny lagergerbygning til udlejning i mindre enheder. Forslag, udvikling, – og myndighedsbehandling udført i 2012.

Renell Haderslev Vej 18 i Helsingør - Billede 1
Renell Haderslev Vej 18 i Helsingør - Billede 2
Renell Haderslev Vej 18 i Helsingør - Billede 3
Renell Haderslev Vej 18 i Helsingør - Billede 4
Renell Haderslev Vej 18 i Helsingør - Billede 5
Se projekt