Bygningsudvikling i Nordsjælland og Helsingør

Krarup Hansen & Co. arbejder med bygningsudvikling i Nordsjælland og Helsingør med fokus på bæredygtighed, funktionalitet og æstetik. Vi udvikler nye bygninger fra idé til færdigt byggeri med fokus på kvalitet, bæredygtighed og integration i det eksisterende bymiljø.

Vores tilgang til bygningsudvikling tager udgangspunkt i bygherrens behov og vision, mens vi samtidig sikrer at projekterne opfylder høje kvalitetsstandarder og er bæredygtige på lang sigt. Vi arbejder tæt sammen med bygherrer, håndværkere og leverandører gennem hele processen.

Nybyggeri

Vi udvikler nye bygninger fra grunden med fokus på moderne arkitektur, funktionalitet og bæredygtighed. Vores projekter omfatter boliger, erhvervsbyggeri og institutioner, der er designet til at stå i generationer.

Rosenkildevej 4 - Billede 1
Rosenkildevej 4 - Billede 2
Rosenkildevej 4 - Billede 3
Rosenkildevej 4 - Billede 4
Rosenkildevej 4 - Billede 5
Rosenkildevej 4 - Billede 6
Rosenkildevej 4 - Billede 7
Rosenkildevej 4 - Billede 8
Se projekt
Teglværksbakken i Ålsgårde - Billede 1
Teglværksbakken i Ålsgårde - Billede 2
Teglværksbakken i Ålsgårde - Billede 3
Teglværksbakken i Ålsgårde - Billede 4
Teglværksbakken i Ålsgårde - Billede 5
Teglværksbakken i Ålsgårde - Billede 6
Teglværksbakken i Ålsgårde - Billede 7
Teglværksbakken i Ålsgårde - Billede 8
Teglværksbakken i Ålsgårde - Billede 9
Teglværksbakken i Ålsgårde - Billede 10
Se projekt

Transformering

Vi transformerer eksisterende bygninger til nye formål med fokus på bevarelse af bygningens karakter og værdi. Vores projekter omfatter ombygning af butikker til boliger, industrilokaler til kontorer og anden kreativ omdannelse af eksisterende strukturer.

Krudttårnsbakken i Frederiksværk

Krudttårnsbakken i Frederiksværk. Udvikling og projektering af privat boligbebyggelse, udført i perioden 2003 – 2009, Etape 1. opført og ibrugtaget i 2003.

Krudttårnsbakken i Frederiksværk - Billede 1
Krudttårnsbakken i Frederiksværk - Billede 2
Krudttårnsbakken i Frederiksværk - Billede 3
Krudttårnsbakken i Frederiksværk - Billede 4
Krudttårnsbakken i Frederiksværk - Billede 5
Krudttårnsbakken i Frederiksværk - Billede 6
Krudttårnsbakken i Frederiksværk - Billede 7
Krudttårnsbakken i Frederiksværk - Billede 8
Se projekt
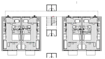
Små, billige og fleksible almene boliger i Helsingør - Billede 1
Små, billige og fleksible almene boliger i Helsingør - Billede 2
Små, billige og fleksible almene boliger i Helsingør - Billede 3
Små, billige og fleksible almene boliger i Helsingør - Billede 4
Se projekt

Små, billige og fleksible almene boliger i Helsingør

Forslag til små, billige og fleksible almene boliger i Helsingør, designet til at passe ind i restarealer, særligt i forbindelse med eksisterende almene boligbebyggelser. Udvikling og planlægning fra 2016.

Rønnedalen i Helsingør

Rønnedalen i Helsingør. Udvikling og transformering af almen boligbebyggelse med ideoplæg, projektforslag til nye boliger indpasset i gammel bebyggelse, udvikling og projektering i perioden 2015 – 2018.

Rønnedalen i Helsingør - Billede 1
Rønnedalen i Helsingør - Billede 2
Rønnedalen i Helsingør - Billede 3
Se projekt
Familieboliger i Espergærde - Billede 1
Familieboliger i Espergærde - Billede 2
Familieboliger i Espergærde - Billede 3
Familieboliger i Espergærde - Billede 4

Familieboliger i Espergærde

Udvikling og design af en familie og flere familieboliger med og uden erhvervsfunktioner, aktuel sag i Espergærde området i 2017. Familieboliger med erhverv, og familieboliger med erhverv i underetagen.

Enfamiliehuse og klyngehuse

Udvikling af enfamiliehuse, klyngehuse mv. Udvikling i forhold til bæredygtigt byggeri med blandt andet passiv energi og miljø. Intentionen med projektet har været at skabe en klyngehusbebyggelse som er tilegnet senior generationen som kommer fra et langt liv i et parcelhus. Vi har taget det bedste med fra parcelhuset og tilført bebyggelsen muligheden for fællesskab, uden at den enkelte behøver at være presset til det.

Enfamiliehuse og klyngehuse - Billede 1
Enfamiliehuse og klyngehuse - Billede 2
Enfamiliehuse og klyngehuse - Billede 3
Enfamiliehuse og klyngehuse - Billede 4